SERIES M – ROTOFLUX FOR HIGH PRESSURE AND LOW SPEED SINGLE AND DOUBLE PASSAGE
The ROTOFLUX unions model M, thanks to the special design of the seals and the ground, hardened and lapped, surface of the rotor, may operate with low friction and wear, at low rotation speed with high fluid pressure, even for long time.
Also they may remain inactive for long periods without seizing. An antirotation pin is provided to prevent the rotation; stop it with a slack slot.
Avoid to operate the union under pressure surges, and at the max suggested operating limits, without consulting our customer service.
|
|
PRESSURE |
TEMPERATURE |
RPM |
|
Air |
10 bar / 145 PSI |
90°C / 195°F |
300 |
|
Hydraulic oil |
300 bar / 3350 PSI |
60 bar / 870 PSI – 300 |

|
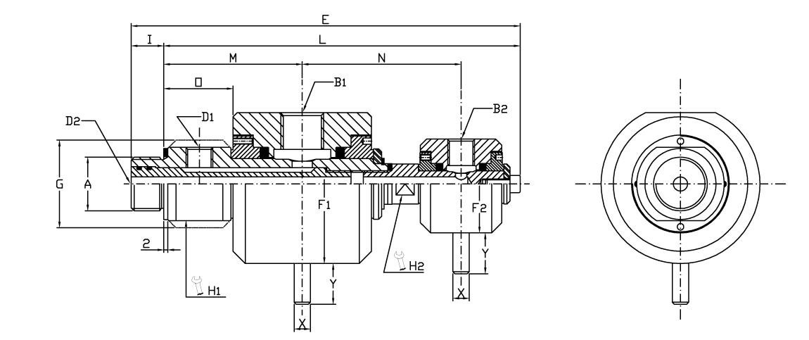
Ordering code |
Single passage unions |
|||||||||||||
|
|
A |
B |
ø D |
E |
ø F |
ø G |
H |
I |
L |
M |
O |
X |
Y |
Kg |
|
M108-1000-01R |
G 1/4″ |
G 1/4″ |
7 |
77 |
48 |
19.5 |
17 |
12 |
65 |
36 |
16 |
8 |
20 |
0.4 |
|
M110-1000-01R |
G 3/8″ |
G 3/8″ |
10 |
88 |
58 |
24.5 |
22 |
12 |
76 |
41.5 |
17 |
8 |
20 |
0.5 |
|
M115-1000-01R |
G 1/2″ |
G 1/2″ |
12 |
88 |
58 |
27.5 |
24 |
14 |
74 |
39.5 |
15 |
8 |
20 |
0.5 |
|
M120-1000-01R |
G 3/4″ |
G 3/4″ |
17.5 |
119 |
78 |
34.5 |
28 |
16 |
103 |
56 |
22 |
8 |
20 |
1.3 |
|
Ordering code |
Double passage unions |
||||||||||||||||||
|
|
A |
B1 |
B2 |
D1 |
ø D2 |
E |
ØF1 |
ØF2 |
øG |
H1 |
H2 |
I |
L |
M |
N |
O |
X |
Y |
Kg |
|
M120-1002-11R |
G 3/4″RH |
G 1/2’’ |
G 1/4’’ |
G 1/4’’ |
7 |
191 |
78 |
48 |
43 |
38 |
17 |
16 |
175 |
68 |
78 |
34 |
8 |
20 |
1.3 |